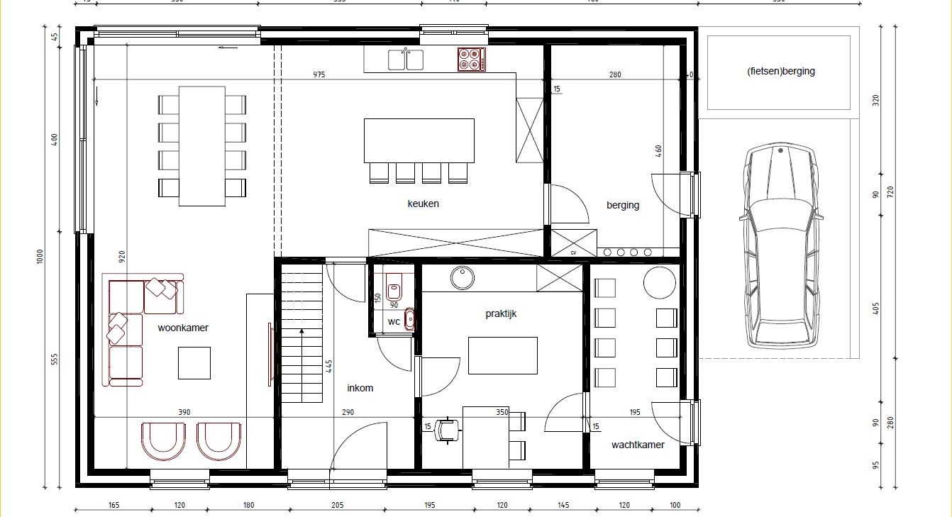
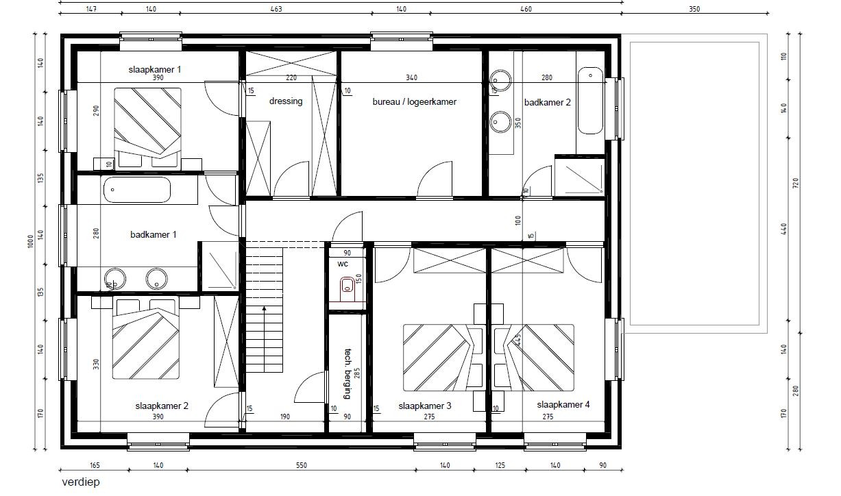
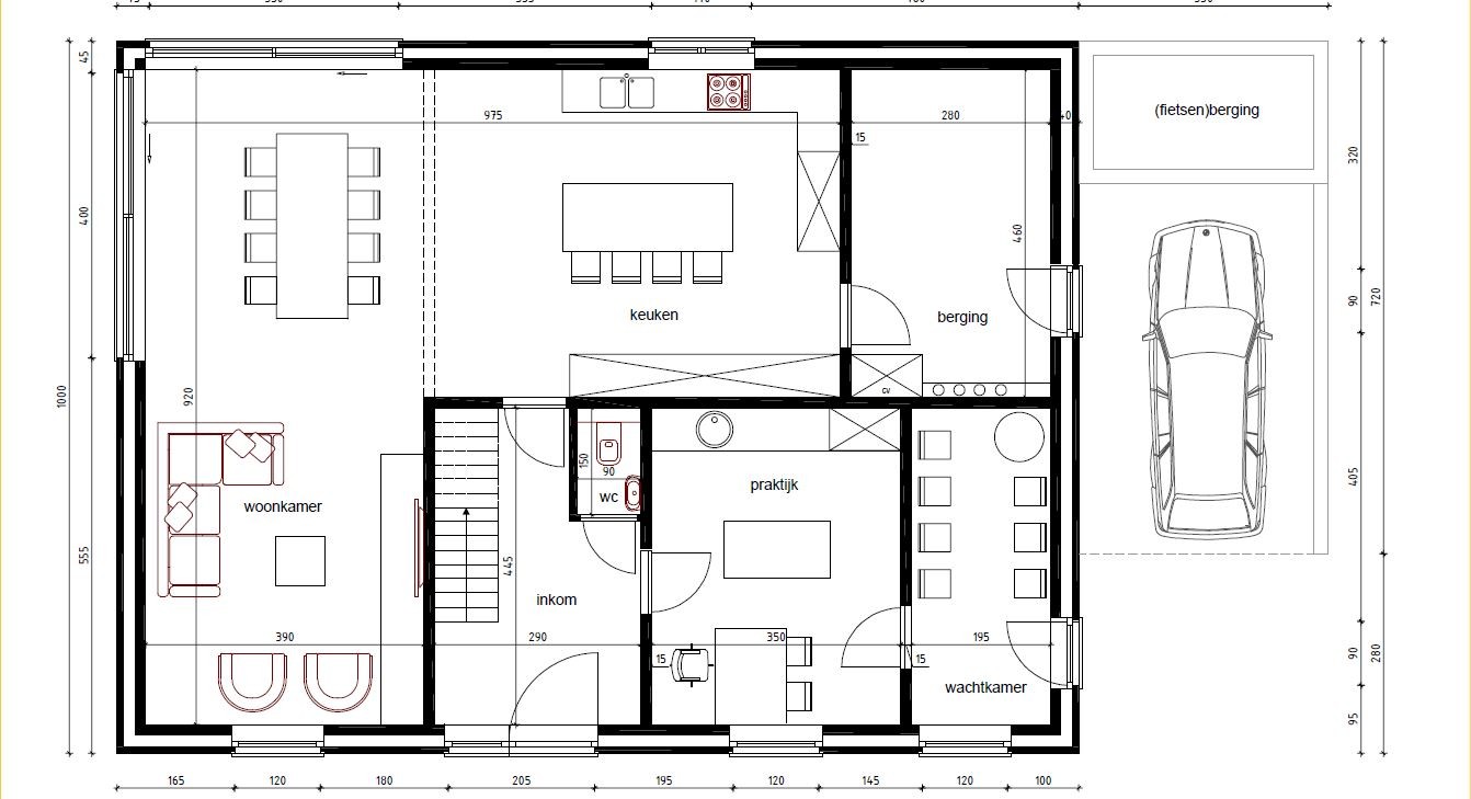
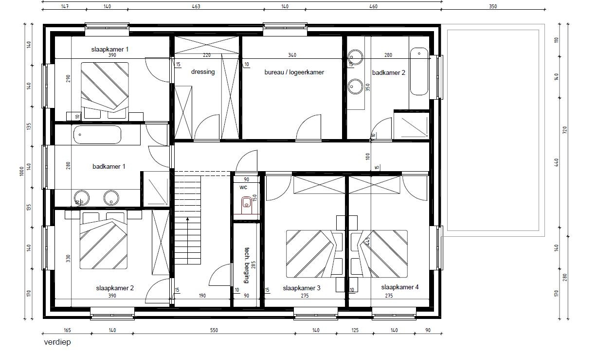
Grond met topligging, geschikt voor para-agrarische toepassing (bvb woning met dierenartspraktijk, loonwerker, tuinbouw,…) met een totale oppervlakte van 1.913 m². Geen bouwverplichting. Reeds gemaakte plannen (woning met praktijk of aangebouwde loods) kunnen in onderling overleg aangepast worden.








